
ПРОЕКТНАЯ ДЕКЛАРАЦИЯ
на строительство объекта
«Многоэтажный жилой дом № 78 со встроенными помещениями в микрорайоне №59А в г. Гомеле»
1. ИНФОРМАЦИЯ О ЗАСТРОЙЩИКЕ:
Коммунальное унитарное дочернее предприятие «Управление капитального строительства города Гомеля» (далее - застройщик), зарегистрировано решением Гомельского областного исполнительного комитета от 26.04.2014г. №251 в Едином государственном регистре юридических лиц и индивидуальных предпринимателей за № 400093573.
Учредитель: коммунальное унитарное предприятие «Гомельское областное управление капитального строительства».
Государственное предприятие «Управление капитального строительства города Гомеля» выполняет функции единого государственного заказчика по строительству жилых домов для граждан, осуществляющих строительство жилых помещений с государственной поддержкой; функции заказчика по строительству жилья на коммерческой основе; функции заказчика по строительству социально значимых объектов города Гомеля.
Место нахождения: 246050 г. Гомель, ул. Советская, 19а-1.
Режим работы предприятия:
- начало рабочего дня – 8-30;
- окончание работы – 17-30;
- перерыв на обед – с 13-00 до 14-00,
выходные – суббота, воскресенье, государственные праздники и праздничные дни.
График приема граждан работниками жилищного отдела, центра продаж (кроме даты приёма заявлений):
- понедельник: с 14.00 до 17.30;
- вторник: с 8.00 до 13.00;
- среда: с 14.00 до 17.30;
- четверг: с 8.30 до 13.00;
- пятница: с 14.00 до 17.30.
Сведения о проектах строительства жилых домов, в которых принимал участие застройщик в течение 3-х лет, предшествующих опубликованию проектной декларации.
Государственное предприятие «УКС города Гомеля» осуществляло функции заказчика по объектам жилья, в том числе:
- 3-5 этажный жилой дом №3 в микрорайоне №94 в г.Гомеле. (июль 2023-июнь 2024);
- Группа жилых домов в районе ул.Телегина-Кирова в г.Гомеле. Жилой дом (позиция №1 по генплану) (сентябрь 2023-март 2024);
- Жилой дом по пр.Речицкий в г.Гомеле (март 2024 - сентябрь 2024);
- Жилой дом в районе ул.Кирова-Дынды в г.Гомеле (апрель 2024 - декабрь 2024);
- Группа жилых домов в районе ул.Телегина-Кирова в г.Гомеле.Жилой дом (позиция №2 по генплану) (июнь 2024-декабрь 2024);
- Проект застройки в районе ул.Косарева в г.Гомеле. 1-й расчетно-планировочный квартал. Возведение жилого дома (позиция №1 по генплану)". 1 очередь строительства. (июнь 2024-декабрь 2024);
- Проект застройки в районе ул.Косарева в г.Гомеле. 1-й расчетно-планировочный квартал. Возведение жилого дома (позиция №1 по генплану)". 2 очередь строительства"(апрель 2024-декабрь 2024);
- Жилой дом №2 в районе ул.Полесская-Кирова-Докутович в г.Гомеле"(июль 2023-март 2025);
- Проект застройки в районе ул.Косарева в г.Гомеле. 1-й расчетно-планировочный квартал. Возведение жилого дома (позиция №2 по генплану)" (сентябрь 2024-июнь 2025);
- "Строительство двух десятиэтажных двухсекционных жилых домов потребительских качеств по ул.Тельмана в г. Гомеле"(июль 2024-сентябрь 2025);
- "Многоэтажный жилой дом №82 в микрорайоне №59А в г. Гомеле" (июль 2024-сентябрь 2025);
- "Жилой дом №1 в районе ул.Полесская-Кирова-Докутович в г.Гомеле" (март 2024-сентябрь 2025);
- "Проект жилой застройки по ул.Барыкина в г.Гомеле. 1 очередь строительства. Жилой дом со встроенными помещениями (позиция № 13-17 по генплану)"(май 2024-декабрь 2025);
- "Многоэтажный жилой дом №83 в микрорайоне №59А в г. Гомеле" (январь 2025 -декабрь 2025);
- "Многоэтажный жилой дом №84 в микрорайоне №59А в г. Гомеле" (февраль 2025-декабрь 2026).
2. ИНФОРМАЦИЯ ОБ ОБЪЕКТЕ СТРОИТЕЛЬСТВА:
2.1. Объект: 4-секционный многоквартирный жилой дом 11-11-11-14 этажей со встроенными помещениями на первом этаже, расположенными в 11-ти этажных секциях; с совмещенной кровлей, с техническим подпольем, без чердака (в секциях в осях «1-4»); с техническим подпольем и теплым чердаком в секции в осях «5-6». Жилой дом запроектирован без мусоропровода. Жилой дом расположен в микрорайоне № 59А Советского административного района г. Гомеля.
Генпроектировщик ОАО «Институт Гомельгражданпроект».
Проект разработан с использованием изделий индустриального изготовления КПД серии 152М.
Уровень комфорта проживания – жилье типовых потребительских качеств.
Цель строительства: квартиры строятся для личных, семейных, бытовых нужд.
2.2. Сведения об этапах и о сроках реализации проекта строительства: начало строительства жилого дома – 29.12.2025. Предполагаемый срок окончания строительства в соответствии с проектной документацией – 29.03.2027.
Продолжительность строительства в соответствии с государственной экспертизой – 15 месяцев.
Срок строительства (перенос, приостановка, разделение на этапы) изменяется в порядке, установленном законодательством.
2.3. Результат государственной экспертизы проектной документации: положительное заключение государственной экспертизы дочернего республиканского унитарного предприятия «Госстройэкспертиза по Гомельской области» от 20.11.2025 №1010-40/25.
По объекту имеются следующие согласования и заключения:
- решение Гомельского городского исполнительного комитета от 13.09.2024 №748§4 «О разрешении проведения проектных и изыскательских работ, строительства объекта»;
- извещение о получении уведомления и регистрации объекта строительства, выданное инспекцией Департамента контроля и надзора за строительством по Гомельской области 08.01.2026 под №5-522Ж-002/26;
Подрядной организацией выступает ОАО «Гомельский домостроительный комбинат» (договор строительного подряда от 29.12.2025 №4285/25).
2.4. Данные о правах застройщика на земельный участок: на основании решений Гомельского городского исполнительного комитета от 26.01.2022 №49§10 "Об изъятии и предоставлении земельных участков в г. Гомеле» и от 27.05.2025 №382§6 "О продлении сроков временного пользования земельными участками" предоставлен в установленном порядке во временное пользование сроком на три года земельный участок площадью – 0,9631 га для строительства многоквартирного жилого дома;
- свидетельство (удостоверение) о государственной регистрации возникновения права на земельный участок от 21.03.2022 №350/257-1879.
2.5. Характеристика объекта строительства.
2.5.1. 1 пусковой комплекс. Жилой дом
В жилом доме предусмотрен набор квартир: всего 176, в том числе:
- однокомнатные – 30 шт., общей площадью от 35,40 кв. м.- до 35,98кв.м.;
- двухкомнатные – 89 шт., общей площадью от 49,74 кв. м. -до 61,10 кв. м;
- трёхкомнатные – 57 шт., общей площадью от 69,25 кв. м. - до 71,85кв. м.
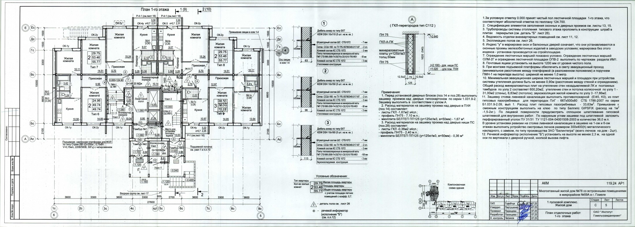
В жилом доме запроектированы: водомерный узел, электрощитовая, венткамера, помещение видеонаблюдения, помещение уборочного инвентаря, колясочная, для хранения детских и инвалидных колясок (с 2 по 11 эт. в секциях в осях «1-4» и на первом этаже, в 14-этажной секции в осях «5-6»), лестнично-лифтовые узлы. Для 14-этажной секции в осях «5-6» запроектирована повысительная насосная станция.
Главный вход в каждую секцию здания организован с ул. Пенязькова и оборудован пассажирским лифтом с посадочной остановкой на уровне входа в здание, с проходной кабиной грузоподъёмностью 630 кг., дополнительный вход организован с дворовой территории, и оборудован вертикальными подъемником.
Главный вход в 14-этажную секцию жилого дома (оси «5-6») с ул.Пенязькова. В секции запроектированы 2 пассажирских лифта без машинного помещения с непроходными кабинами
Конструктивная схема здания - с поперечными и продольными несущими стенами и перекрытиями, опертыми по контуру или по 2-м и 3-м сторонам.
Фундаменты запроектированы из забивных железобетонных свай, объединенных монолитным железобетонным ростверком.
Наружные стеновые панели приняты сборные железобетонные 3-х слойные панели:
- несущими;
-самонесущими;
- ненесущими, с поэтажным опиранием на плиты перекрытий.
Плиты перекрытий и покрытия - сборные железобетонные опёртые по контуру, по 2-м и 3-м сторонам.
Внутренние стеновые панели - сборные железобетонные.
Перегородки санитарных узлов сборные железобетонные панели.
Ограждения лоджий – из сборных железобетонных изделий.
Фасад здания - окраска входной группы, по наружной поверхности панелей воднодисперсионной акриловой силикон-модифицированной фасадной краской. В отделке входных групп применяются металлические кассеты.
Внутренняя отделка мест общего пользования (лестнично-лифтовые узлы, лифтовые холлы, внеквартирные коридоры, тамбуры):
- потолки – улучшенная окраска фактурной краской, реечный потолок и подвесной потолок «Армстронг» (1 этаж частично);
- стены и перегородки- улучшенная окраска фактурной краской, масляной краской, частично – применяется керамическая плитка;
- полы (покрытие)- плитка с антискольжением.
Двери входные в квартиры – стальные полной заводской готовности по СТБ 2433.
Окна, балконные двери в квартирах – ПВХ профиль с заполнением двухкамерным стеклопакетом оборудованы детскими замками безопасности и приточными клапанами. Окна с ламинацией со стороны фасада. Приточные клапаны и ламинация запроектированы частично в соответствии с проектом.
Остекление лоджий запроектировано из профиля ПВХ с заполнением рам одним стеклом (по СТБ 1912), оборудованы детскими замками безопасности, с ламинацией со стороны фасада.
Для открывающихся створок окон и рам остекления лоджий предусмотрена установка детских замков безопасности. Для элементов остекления лоджий, предназначенных для установки с 6 этажа, применено закаленное стекло.
В жилых комнатах квартир предусмотрены автономные пожарные извещатели.
Квартиры (согласно заданию на проектирование) – с полной внутренней отделкой. Заявления на выполнение частичной отделки в квартирах не принимаются.
Дольщик имеет право отказаться от выполнения внутренних отделочных работ до начала их выполнения, но не позднее чем за 6 месяцев до даты ввода объекта в эксплуатацию.
Проектом предусматривается перечень отделочных работ:
-потолки - (жилые комнаты, прихожие, коридоры, кухни) – улучшенная окраска акриловой краской; улучшенная покраска влагостойкой акриловой краской для потолков (ванная комната, санузел);
- стены - оклейка обоями (жилые комнаты, прихожие); оклейка моющимися обоями (кухни), улучшенная покраска акриловой влагостойкой краской (ванная комната, санузел);
- полы - ламинированное напольное покрытие с ПВХ плинтусом (жилые комнаты, прихожие, коридоры, кухни), неглазурованная керамическая плитка с плинтусом из неглазурованной плитки (ванные и санузлы);
- двери межкомнатные;
- оконные откосы – покраска акриловой влагостойкой краской;
-установка ванны акриловой с выпуском, сифоном и экраном, умывальник керамический, мойка стальная эмалированная, электрическая плита.
Во всех квартирах предусмотрена установка унитазов, приборов учёта воды, тепла. В качестве отопительных приборов приняты стальные панельные радиаторы. Учет электроэнергии осуществляется электронными счетчиками, расположенными в этажных щитках.
В квартирах без отделки, на кухне, запроектировано место подключения электроплит для приготовления пищи.
Обеспечены условия жизнедеятельности физически ослабленных лиц и маломобильных групп населения в соответствии с требованиями нормативных документов. Предусмотрена декоративная подсветка фасада здания (праздничная и повседневная).
Предусмотрена установка оборудования для видеонаблюдения подъездов и прилегающей территории жилого дома.
2.5.2. 2 пусковой комплекс. Встроенные помещения.
По функциональному назначению во встроенных нежилых помещениях №1-№11 предусматривается размещение помещений административно-торгового назначения.
Внутренняя отделка в нежилых помещениях не предусмотрена.
Окна: ПВХ с двухкамерным стеклопакетом с функцией микропроветривания в поворотно-откидных створках оконных блоков.
Витражи: из алюминиевого профиля с двухкамерным стеклопакетом.
Наружные двери главных входов – алюминиевые, остекленные с заполнением однокамерным стеклопакетом.
Окраска фасадов зданий (встроенные помещения) по наружной поверхностью панелей заводской готовности выполняется воднодисперсионной акриловой силикон-модифицированной фасадной краской за 2 раза, а также применяется декоративная техника.
Учет электроэнергии осуществляется электронными счетчиками, расположенными в щитках по месту.
Для индивидуального учёта в санузлах предусматривается установка счётчиков холодной и горячей воды с возможностью дистанционного съема информации.
Система отопления – двухтрубная горизонтальная с разводкой трубопроводов в конструкции пола из полимерных труб.
Для каждого нежилого помещения предусмотрен индивидуальный учет тепловой энергии с возможностью дистанционного считывания показаний.
В качестве отопительных приборов приняты стальные радиаторы.
К каждому встроенному помещению отнесена часть электрощитовой встроенных помещений, расположенной на первом этаже, а также часть теплового и водомерного узлов, расположенных в техподполье и выделенных по количеству встроенных объектов, пропорционально объемам инженерного обеспечения.
Установка технологического оборудования во встроенных нежилых помещениях не предусмотрена. Приобретение и установка технологического оборудования во всех встроенных помещениях производится участниками долевого строительства самостоятельно после ввода объекта в эксплуатацию.
Встроенные нежилые помещения оборудованы системами автоматической пожарной сигнализацией.
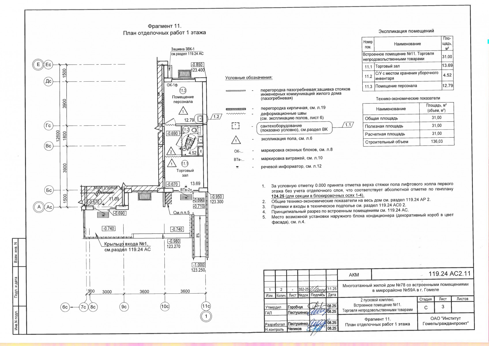
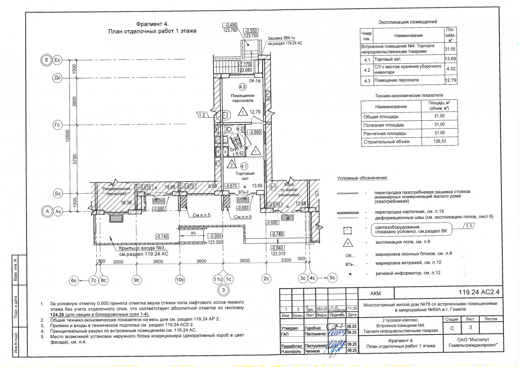
2.5.2.1. Встроенное нежилое помещение №1 (Торговля непродовольственными товарами) общей площадью - 31,00 кв. м. (торговый зал -13,69 кв. м., санузел – 4,52 кв. м., помещение персонала- 12,79 кв. м.);
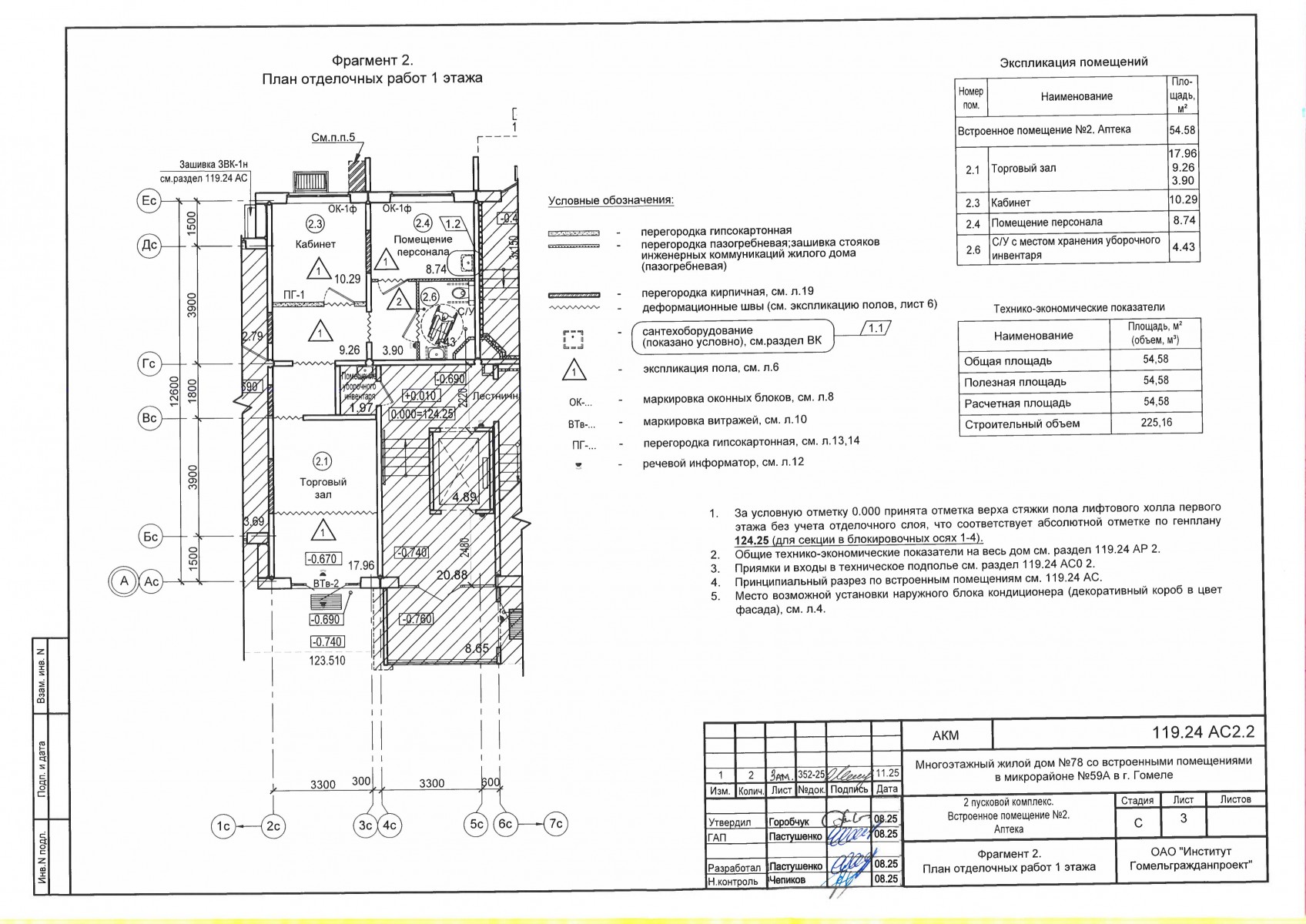
2.5.2.2. Встроенное нежилое помещение №2 (Аптека) общей площадью - 54,58 кв. м. (торговый зал – 17,96 кв. м., коридор- 9,26 кв. м., кабинет-10,29 кв. м., помещение персонала- 8,74 кв. м, коридор- 3,90 кв. м., санузел – 4,43 кв. м.);
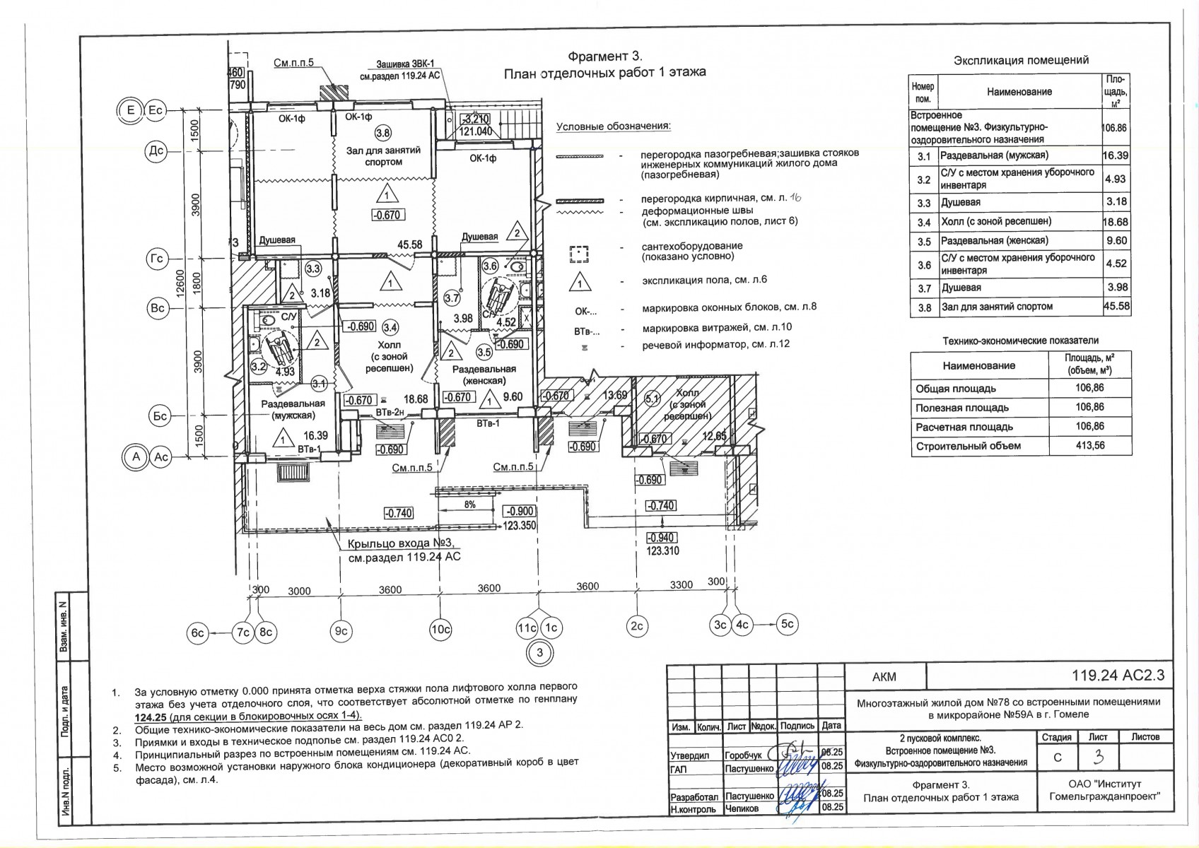
2.5.2.3. Встроенное нежилое помещение №3 (Физкультурно-оздоровительного назначения) общей площадью – 106,86 кв. м. (раздевальная мужская-16,39 кв. м, санузел – 4,93 кв. м., душевая- 3,18 кв. м, холл с зоной ресепшен – 18,68 кв. м., раздевальная женская -9,60 кв. м, санузел- 4,52 кв. м, душевая – 3,98 кв. м, зал для занятия спортом – 45,58 кв. м.);
2.5.2.4. Встроенное нежилое помещение №4 (Торговля непродовольственными товарами) общей площадью - 31,00 кв. м. (торговый зал -13,69 кв. м., санузел – 4,52 кв. м., помещение персонала- 12,79 кв. м.);
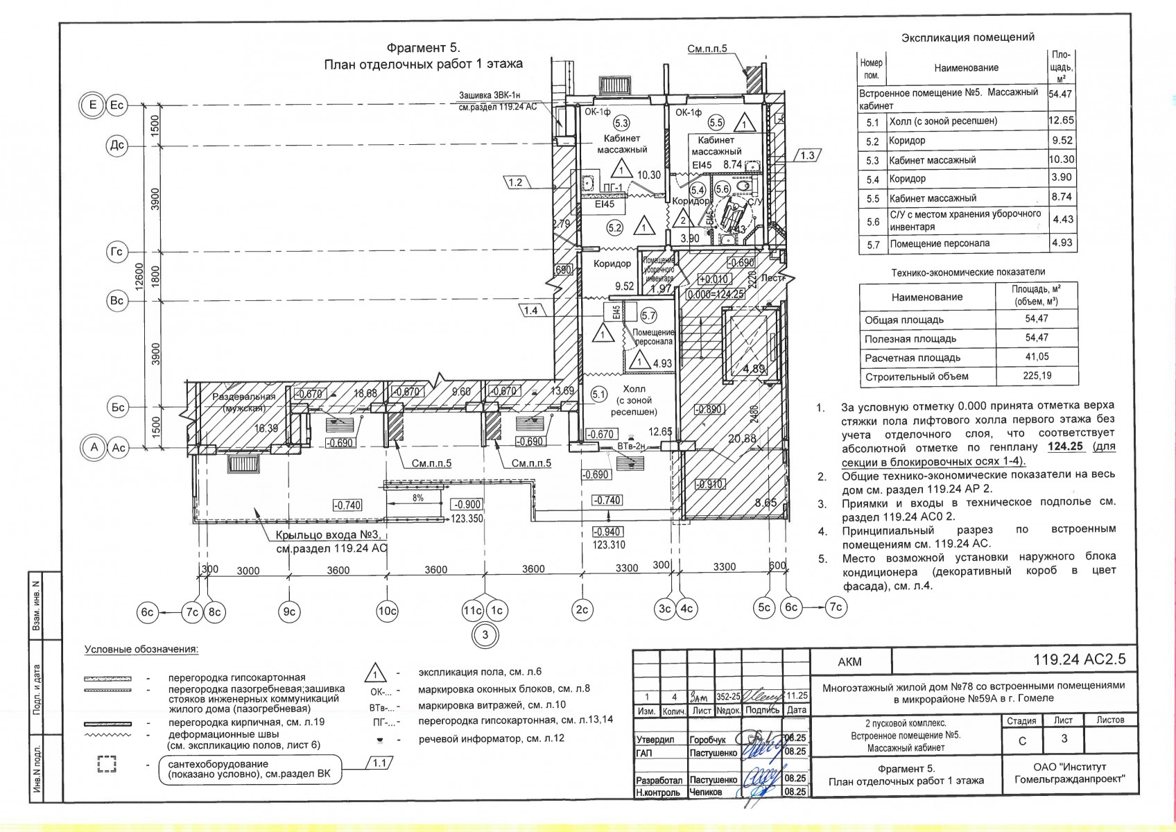
2.5.2.5. Встроенное нежилое помещение №5 (Массажный кабинет) общей площадью - 54,47 кв. м. (холл с зоной ресепшен – 12,65 кв. м., коридор- 9,52 кв. м. кабинет массажный – 10,30 кв. м., коридор- 3,9 кв. м., кабинет массажный – 8,74 кв. м., санузел – 4,43 кв. м., помещение персонала- 4,93 кв. м.);
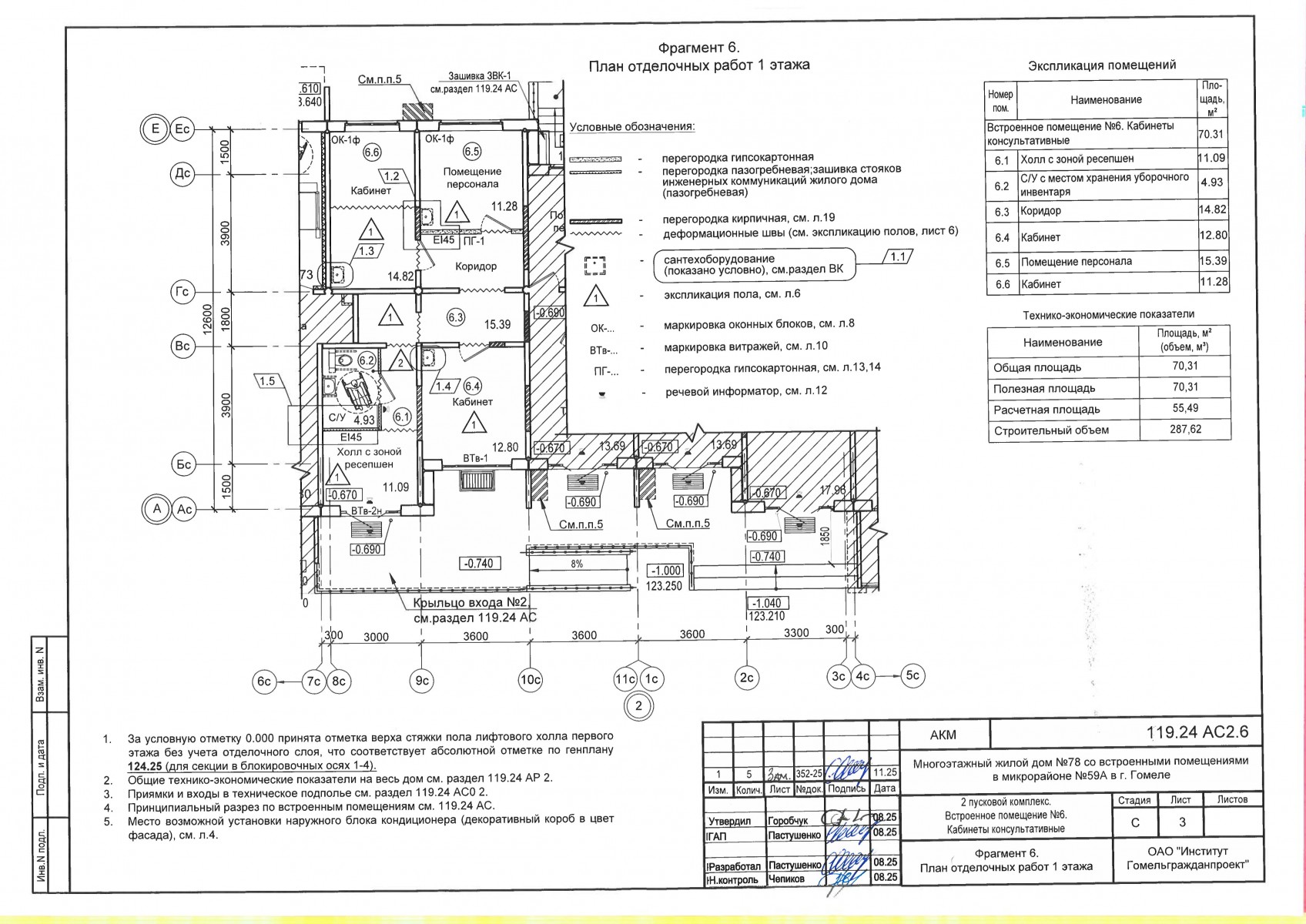
2.5.2.6. Встроенное нежилое помещение №6 (Кабинеты консультативные) общей площадью - 70,31 кв. м. (холл с зоной ресепшен – 11,09 кв. м., санузел –4,93 кв. м., коридор – 14,82 кв. м., кабинет – 12,8 кв. м., помещение персонала – 15,39 кв. м., кабинет (помещение персонала) - 11,28 кв.м,);
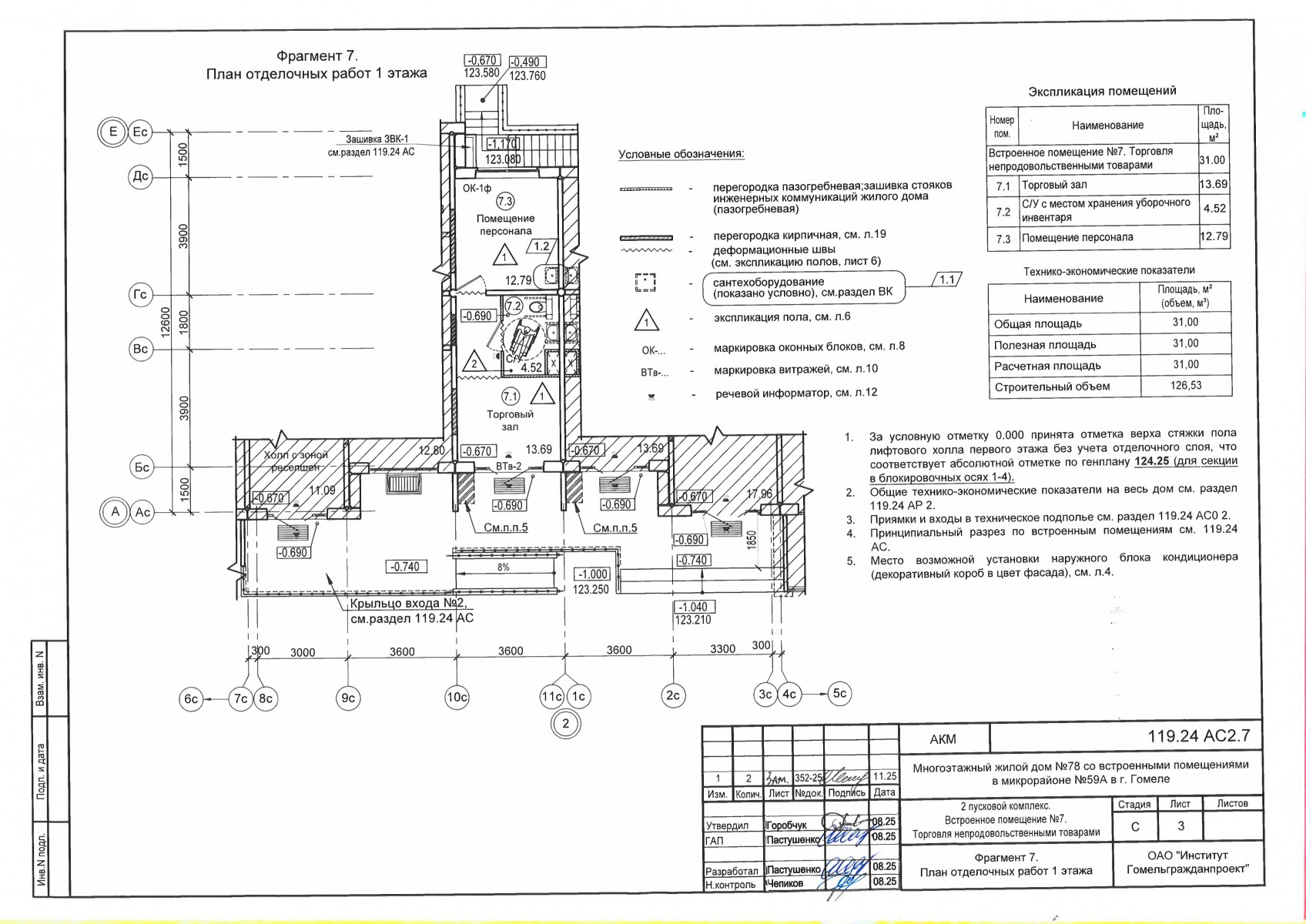
2.5.2.7. Встроенное нежилое помещение №7 (Торговля непродовольственными товарами) общей площадью - 31,00 кв. м. (торговый зал -13,69 кв. м., санузел – 4,52 кв. м., помещение персонала- 12,79 кв. м.);
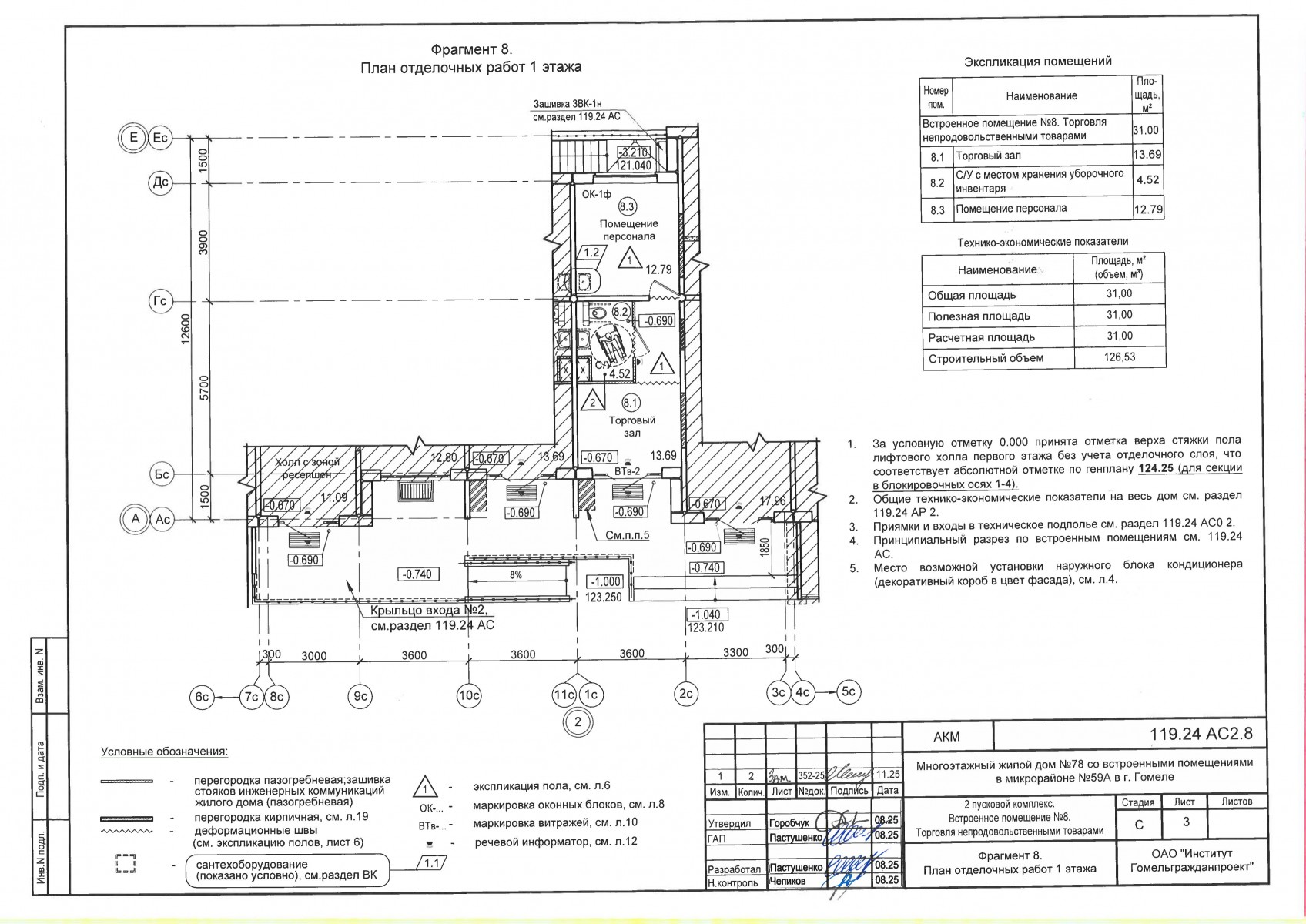
2.5.2.8. Встроенное нежилое помещение №8 (Торговля непродовольственными товарами) общей площадью - 31,00 кв. м. (торговый зал -13,69 кв. м., санузел – 4,52 кв. м., помещение персонала- 12,79 кв. м.);
2.5.2.9. Встроенное нежилое помещение №2 (Оптика) общей площадью - 54,36 кв. м. (торговый зал – 17,96 кв. м., торговый зал 3,41 кв. м, кабинет – 10,30 кв. м., помещение персонала- 8,74 кв. м коридор- 9,52 кв. м., санузел – 4,43 кв. м.);
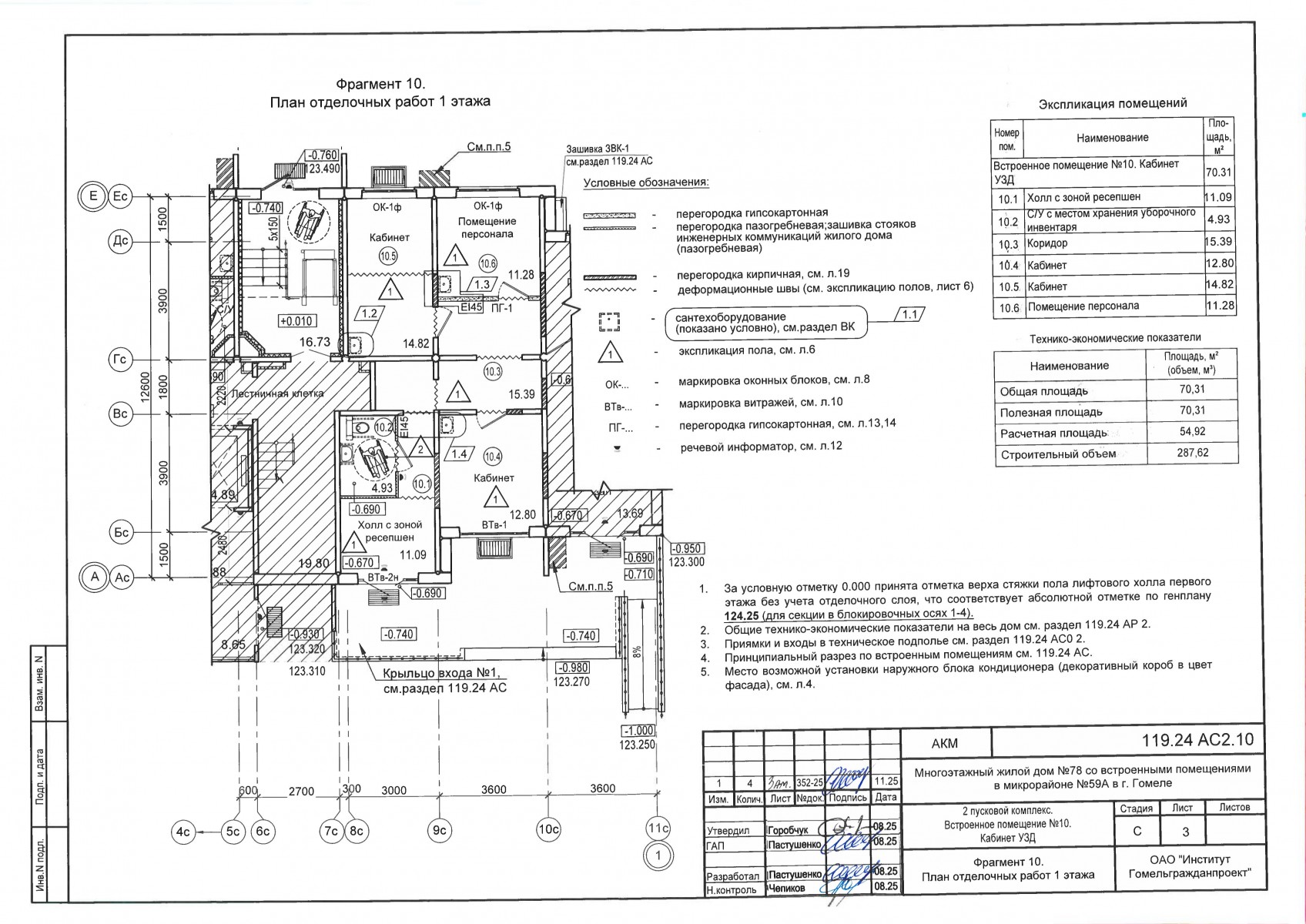
2.5.2.10. Встроенное нежилое помещение №10 (Кабинет УЗД) общей площадью - 70,31 кв. м. (холл с зоной ресепшен -11,09 кв. м., санузел – 4,93 кв. м., коридор -15,39 кв. м., кабинет – 12,80 кв. м., кабинет – 14,82 кв. м., помещение персонала – 11,28 кв. м.);
2.5.2.11. Встроенное нежилое помещение №11 (Торговля непродовольственными товарами) общей площадью - 31,00 кв.м. (торговый зал – 13,69 кв.м., санузел – 4,52 кв.м., помещение персонала- 12,79 кв.м.).
2.6. Количество встроенных помещений предлагаемых для заключения договоров -11.
2.7. Количество квартир предлагаемых для заключения договоров – 175.
2.7.1. Квартиры №№ 137-176 строятся для граждан состоящих на учете нуждающихся в улучшении жилищных условий в г. Гомеле, на основании решения Гомельского городского исполнительного комитета от 11.02.2026 №95 «Об установлении доли в объекте при долевом строительстве», письма Гомельского городского исполнительного комитета от 03.02.2026.
2.7.2. Квартира № 106 (строится с полной отделкой) согласно постановлению Совета Министров РБ от 30.02.2007г. № 407 «О некоторых вопросах, связанных со сносом жилых домов на земельных участках, изымаемых для государственных нужд» подлежат безвозмездной передаче в коммунальную собственность г. Гомеля и предназначены для переселения граждан из жилых домов, подлежащих сносу в связи с предоставлением земельных участков под жилищное строительство.
2.8. Ценовые показатели стоимости:
2.8.1. Стоимость строительства 1 кв. м. общей площади на дату опубликования проектной декларации для граждан, состоящих на учете нуждающихся в улучшении жилищных условий в г. Гомеле, строящих жилые помещения без государственной поддержки, составляет, для квартир:
– с выполнением отделочных работ – 2 938,15 рублей;
– без выполнения отделочных работ – 2649,84 рублей.
2.8.2. Стоимость строительства 1 кв. м. общей площади на дату опубликования проектной декларации, для граждан, не состоящих на учете нуждающихся в улучшении жилищных условий в г. Гомеле, для юридических лиц и индивидуальных предпринимателей с учётом затрат на создание объектов распределительной инженерно-транспортной инфраструктуры, компенсации местному бюджету стоимости жилых помещений для переселения граждан из жилых домов, подлежащих сносу в связи с предоставлением земельных участков под жилищное строительство составляет, для квартир:
– с выполнением отделочных работ – 3114,27 рублей;
– без выполнения отделочных работ – 2825,96 рублей.
2.8.3. Стоимость строительства 1 кв. м. встроенных нежилых помещений, общей площади на дату опубликования проектной декларации с учетом стоимости наружных инженерных сетей, благоустройства прилегающей территории, без технологического оборудования, с учетом НДС составляет- 5074,65 рублей.
При заключении договора создания объекта долевого строительства в месяцах, следующих за месяцем опубликования настоящей декларации, стоимость жилых помещений одного квадратного метра определяется на дату заключения договора.
Расчет цены объекта долевого строительства на дату заключения договора и на дату ввода в эксплуатацию производятся по проектной площади.
Застройщик включает сумму индексации (пересчета)в цену договора создания объекта долевого строительства, заключаемого с новым дольщиком, вступившим в долевое строительство взамен выбывшего дольщика, которому были возвращены денежные средства с индексацией.
Цена объекта долевого строительства (цена договора) формируется на стадии заключения договора с дольщиком в соответствии с законодательством о ценообразовании в Республике Беларусь. Изменение цены объекта долевого строительства допускается в случаях, предусмотренных законодательством и по соглашению сторон, а её уплата производится поэтапно.
2.9. О передаче квартир и встроенных нежилых помещений правообладателям: застройщик в порядке и в сроки, предусмотренные законодательством и договором, при условии полной оплаты дольщиком стоимости объекта долевого строительства, передаёт им документы на оформление права собственности и после регистрации передаёт им квартиры и встроенные нежилые помещения.
2.10. Состав общего имущества в многоквартирном жилом доме, которое будет находиться в общей долевой собственности дольщиков: межквартирные лестничные клетки, лестницы, лифты, лифтовые и иные шахты, коридоры, крыши, технические этажи и подвалы, другие места общего пользования, несущие, ограждающие ненесущие конструкции, механическое, электрическое, санитарно-техническое и иное оборудование, находящееся за пределами или внутри жилых и (или) нежилых помещений, элементы озеленения и благоустройства, а также иные объекты недвижимости, служащие целевому использованию многоквартирного жилого дома в соответствии с проектно-сметной документацией.
3. ПОРЯДОК ПРИЁМА ЗАЯВЛЕНИЙ И ЗАКЛЮЧЕНИЯ ДОГОВОРОВ
Заявления на строительство квартир, встроенных нежилых помещений в данном доме будут приниматься от физических лиц, юридических лиц и индивидуальных предпринимателей в жилищном отделе, центре продаж предприятия (каб.2-3) по адресу г. Гомель, ул. Советская д.19А-1, в порядке живой очереди.
Для подачи заявления и заключения договора необходимо личное присутствие гражданина с наличием документа удостоверяющего личность (паспорт, идентификационная карта) или его представителя с наличием доверенности и документа удостоверяющего личность. В случае предоставления при подаче заявления справки о состоянии на учёте нуждающихся в улучшении жилищных условий в г. Гомеле она должна быть выдана не позднее 30 (включительно) календарных дней на момент её предоставления в УКС, со сверкой учетных данных.
Порядок приёма заявлений на жилые помещения, принимается одно заявление от физического или юридического лица или индивидуального предпринимателя на одно жилое помещение, в т.ч. в случае подачи заявления по доверенности от имени другого заявителя.
Приём заявлений на долевое строительство осуществляется до момента набора необходимого количества заявлений, соответствующих количеству продекларированных жилых помещений, встроенных нежилых помещений.
Предварительная запись и бронирование квартир, встроенных нежилых помещений не осуществляется, электронные заявления не регистрируются.
Заявления подлежат регистрации в порядке очередности их подачи.
Застройщик не формирует очередь, не ведёт учет и не влияет на формирование очереди потенциальных дольщиков.
Заключение договоров с дольщиками осуществляется в соответствии с постановлением Совета Министров Республики Беларусь от 12.03.2019 №156 «О долевом строительстве».
Не допускается переуступка прав и обязанностей, вытекающих из сути договора создания объекта долевого строительства по объекту "Многоэтажный жилой дом №78 со встроенными помещениями в микрорайоне №59А в г. Гомеле" третьим лицам кроме: детям, родителям, супругу (супруге), родным братьям и сёстрам.
Заявление считается аннулированным в случае неявки лица подавшего заявление на участие в долевом строительстве для подписания договора в течение 3-х рабочих дней с момента получения сообщения о готовности договора (информация о готовности договора направляется посредством СМС-оповещения или звонком по номеру телефона, указанному в заявлении).
Приём заявлений на квартиры, встроенные не жилые помещения освободившиеся в ходе строительства, осуществляется по живой очереди только после того, как соответствующая информация будет размещена на сайте государственного предприятия «УКС города Гомеля» uksgomel.by (свободные квартиры).
Дата начала приёма заявлений на жилые помещения - «24» марта 2026 г. в 08:30.
Дата начала приёма заявлений на встроенные нежилые помещения - «25» марта 2026 г. в 08:30.
Оплата первоначального взноса (в первый месяц приёма заявлений) осуществляется в размере 30 процентов от общей стоимости квартиры, встроенных нежилых помещений.
Более подробную информацию по вышеуказанному объекту можно получить по телефонам:
342-781; 342-795; 342-839; 342-870; 342-854; (29) 373-42-42, А1+375(29) 355-32-42.
График приема граждан работниками жилищного отдела, центра продаж (кроме дат приёма заявлений):
- понедельник: с 14.00 до 17.30;
- вторник: с 8.00 до 13.00;
- среда: с 14.00 до 17.30;
- четверг: с 8.30 до 13.00;
- пятница: с 14.00 до 17.30.
Фасад
Фасад
Планировка 1 этаж
Планировка 2 этаж
Планировка 2-10 этажей
Планировка 3-11 этажей
Планировка 11-14 этажей
Встроенное помещение №1
Торговля непродовольственными товарами
Встроенное помещение №2
Аптека
Встроенное помещение №3
Физкультурно-оздоровительного назначения
Встроенное помещение №4
Торговля непродовольственными товарами
Встроенное помещение №5
Массажный кабинет
Встроенное помещение №6
Кабинеты консультативные
Встроенное помещение №7
Торговля непродовольственными товарами
Встроенное помещение №8
Торговля непродовольственными товарами
Встроенное помещение №9
Оптика
Встроенное помещение №10
Кабинет УЗД
Встроенное помещение №11
Торговля непродовольственными товарами

















